新着!テナント物件 川越市南台 貸店舗 飲食店居抜き
【南台コータースB】
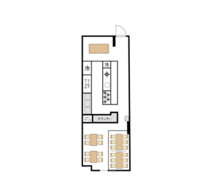
建物外観その他















賃貸条件
賃料 100,000円(税別)
管理費 ー
礼金 1ケ月
敷金 3ケ月
保証金 ー
償却金 ー
敷引 ー
更新年数 3年
契約期間 3年
専有面積 53.42㎡(16.15坪)
所在階 1階
駐車場 ー
現況 空き
所在地 埼玉県川越市南台2-5-14
〈備考〉
・更新料:新賃料1ヶ月
保証会社要加入 初回保証料 総賃料賃料100%
更新保証料1年毎1万円※滞納なし
◎焼肉店の居抜き物件 駅徒歩2分の好立地
造作譲渡費用なし(機能保証なし)、退去時スケルトン返し
川越市南台周辺で、貸店舗をお探しの方、ぜひご検討ください!
お問い合わせ

川越のテナント物件のことなら川越テナント専門店へ
まずはお気軽にお問い合わせください
営業時間:10:00〜17:00 定休日:水、土、日、祝日
前の記事へ
次の記事へ