新着!テナント物件 川越市南大塚 貸倉庫付事務所
【矢部貸事務所】
建物外観その他




賃貸条件
賃料 460,000円(税別)
共益費 ー
礼金 1ケ月
敷金 2ヶ月
保証金 ー
償却金 ー
敷引 ー
契約期間 3年
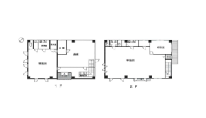
専有面積 244.65㎡(74.00坪)
所在階 1-2階
駐車場 有り無料 11台
現況 相談
所在地 埼玉県川越市南大塚4-13-10
〈備考〉
・入居日要相談
・1階 120.45㎡、2階 124.20㎡
◎南大塚駅より約徒歩8分
ロードサイドの一棟貸しです
駐車場11台分あります
川越市南大塚周辺で、貸倉庫付事務所をお探しの方、ぜひご検討ください!
お問い合わせ

川越のテナント物件のことなら川越テナント専門店へ
まずはお気軽にお問い合わせください
営業時間:10:00〜17:00 定休日:水、土、日、祝日
前の記事へ
次の記事へ