新着!テナント物件 川越市新富町 貸店舗事務所
【シントミビル】
建物外観その他




賃貸条件
賃料 550,000円
共益費 162,426円
礼金 1ヶ月
敷金 3ヶ月
保証金 ー
償却金 ー
敷引 ー
契約期間 3年
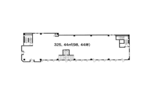
専有面積 325.44㎡(98.44坪)
所在階 5階
駐車場 ー
現況 相談
所在地 埼玉県川越市新富町1-11-2
〈備考〉
・更新料:100,000円
・住宅保険:加入要
・駐車場:向かいと隣にコインPあり
・エレベーターあり
・事務所、教室 フィットネスクラブなどの利用に限ります(飲食系以外)
・8月より空き予定
・屋上看板:現在利用可能(月額33,000円税込)
◎ワンフロアの貸店舗・事務所。
人通りの多い、クレアモール沿いです。
川越市新富町周辺で、貸店舗事務所をお探しの方、ぜひご検討ください!
お問い合わせ

川越のテナント物件のことなら川越テナント専門店へ
まずはお気軽にお問い合わせください
営業時間:10:00〜17:00 定休日:水、土、日、祝日
前の記事へ