新着!テナント物件 川越市脇田本町 貸店舗事務所
【マンション雅 201】
建物外観その他














賃貸条件
賃料 66,000円
管理費 ー
礼金 1ケ月
敷金 2ケ月
保証金 ー
償却金 ー
敷引 ー
契約期間 2年
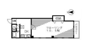
専有面積 31.18㎡(9.43坪)
所在階 2階
駐車場 ー
現況 空き
所在地 埼玉県川越市脇田本町14-2
〈備考〉
・更新料:新賃料1ヶ月
・賃貸保証等:加入要(賃料総額の100%)
・保険:加入要
・バス・トイレ別、シャワー、トイレ、室内洗濯機置場、給湯、都市ガス、エアコン
・飲食店不可、角部屋
【リフォーム履歴】
・水回り:2025年7月
キッチン、トイレ、洗面所、給湯器
・内装:2025年7月
全室クロス張替え、床(フローリング等)、壁・天井(クロス・塗装等)、建具(室内ドア等)
※実施年月は最も古い履歴を表示
◎窓が多く室内が明るいです
2025年7月水回り、内装リフォーム済
川越市脇田本町周辺で、貸店舗事務所をお探しの方、ぜひご検討ください!
お問い合わせ

川越のテナント物件のことなら川越テナント専門店へ
まずはお気軽にお問い合わせください
営業時間:10:00〜17:00 定休日:水、土、日、祝日
前の記事へ
次の記事へ